Goiânia - Setor Oeste

Lançamento

2 dormitórios (1 suíte)

1 vaga (Privativa)

2 banheiros

76,00 m² de área privativa

76,00 m² de área total

a partir de R$ 807.500,00

  aceita financiamento financiamento com construtora

Previsão de Entrega: agosto / 2028

Mais Informações via WhatsApp

Os preços, disponibilidades e condições de pagamento poderão ser alterados sem prévia comunicação.

Apartamento no Edifício Edficio Fascino em Goiânia - Consciente Construtora e Incoporadora

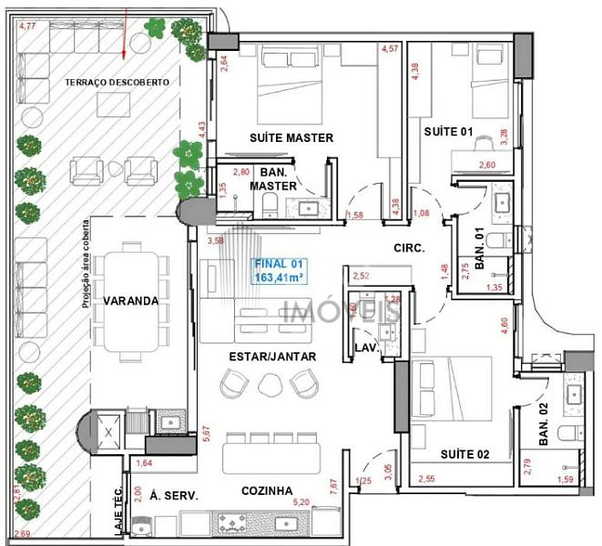
Apresentamos ao Fascino, lançamento imobiliário da Construtora da Consciente construtora. Este Empreendimento possui uma excelente arquitetura notável com a assinatura de Leonardo Zanatta e possui uma localização estratégica na Rua 13, Setor Bueno, Goiânia. Com uma proposta ideal tanto para investimento quanto para moradia em família, oferece apartamentos à venda de 2 a 3 quartos com medidas entre 76 e 163m¹. A data de entrega do edifício está prevista para agosto de 2028 e o preço está a partir de R$ 807.500,00.

Localização

O empreendimento está localizado em um dos bairros mais desejados de Goiânia: Setor Bueno. Está ao lado do Setor Marista e Pedro Ludovico, reconhecidos por sua infraestrutura e por oferecer qualidade de vida superior. 

O Fascino está a 1,7km do Parque Vaca Brava, a 1,5km do Goiânia Shopping e a 960m do Supermercado Tático. 

Lazer

O empreendimento possui diversos espaços para aproveitar com a família e os amigos, dentre eles áreas de piscina, espaço fitness, salão de festas, rooftop e espaço fitness. 

Construtora Consciente

A Consciente é uma construtora e incorporadora com 41 anos de história no mercado imobiliário do estado de Goiás, e está entre as mais tradicionais e principais empresas do ramo. Ano após ano, a empresa é ranqueada entre as 100 maiores construtoras do Brasil. Alguns de seus números expressivos incluem: 770 mil metros quadrados de áreas construídas, 3.500 apartamentos lançados e quase 10 mil metros quadrados de área verde lançadas.


Características do Imóvel

  • Área de Serviço
  • Sala de Estar
  • Sala de Jantar
  • Cozinha
  • Banheiro Social
  • Suíte Master
  • Churrasqueira

Características do Empreendimento

  • Salão de Festas
  • Piscina
  • Espaço Fitness
  • Hall Decorado e Mobiliado
  • RoofTop

Endereço:

Rua 13
Setor Oeste
Goiânia / GO